Santarém, Benavente, Santo Estevão, Centro
Terreno Urbano com 581 m2 projeto de Arquitetura Aprovado na Urbanização Quinta da Cegonha em Santo Estevão, Lote nº 26.
Venha conhecer a pacata vila ribatejana e receba um ambiente que respira bom gosto, qualidade e tranquilidade, local certo e ideal para construir a sua casa de sonho, porque a sua Família merece.
Acessos facilitados, a 36 km do Montijo e Ponte Vasco da Gama, 60 Km do Aeroporto e da Grande Lisboa e a 65 km de Santarém.
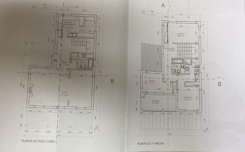
Lote com 453 m2, para construção de Moradia com 2 pisos, estando aprovado. Moradia Modelo A,
Moradia Modelo E e Moradia Modelo C.
Modelo A
- T3 com 188 m2
- T 4 com 216 m2
Modelo E
- T2 com 185 m2 área útil + 30 m2 área dependente
- T2 com 176 m2 área útil + 30 m2 área dependente
- T3 com 198 m2 área útil + 30 m2 área dependente
Modelo C
- T2 com 171 m2
- T3 com 200 m2
- T4 com 225 m2
Grande oportunidade de negócio..
Antecipe-se a outros possíveis interessados!..
Agende já a sua visita.
Através da nossa equipa de especialistas intermediários de crédito autorizados pelo BP 0006202, acompanhamos o processo de financiamento de início ao fim!