Apartamento remodelado T4 em Rio Maior com 147m2

234 500€

  • 6
  • 4
  • 2
  • Útil: 147m2
  • Bruta: 147m2
  • C.E.: C
  • Ano: 1989
  • Orientação Solar: Nascente
  • Ref: 65954-TEAM60563

Localização

Santarém, Rio Maior, Rio Maior, Centro

Descrição

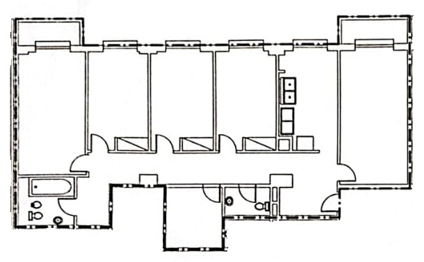
Apartamento T4 remodelado em 2021, com 147m2 no centro de Rio Maior perto das ruinas romanas. 4º andar com elevadores novos.
A poucos minutos a pé da escola Superior de Desporto.
Dispõe de duas varandas com paisagem desafogada. Uma arrecadação no corredor com 7m2, dois wc, cozinha moderna semi-equipada.
Amplo corredor com duas áreas de circulação.
Apartamento ideal para família numerosa.

Atributos

  • Acesso a Mobilidade Reduzida
  • Elevador
  • Arrecadação
  • Vistas Exteriores
  • Boa Exposição Solar

Divisões

Plantas

Nome do piso: 4º Andar com elevadores

Divisão Área Nota
Sala
Quarto 15.00m2
Quarto 15.00m2
Quarto 14.00m2
Quarto 13.00m2
Cozinha 16.00m2
WC 8.00m2
WC 10.00m2
Corredor 16.00m2
Quarto Interior 7.00m2
Varanda 3.00m2
Varanda 3.00m2